Seminar-, Schulungs-, Behandlungsräume im UG eines Wohn- und Geschäftshauses

28844 Weyhe, Bürohaus zur Miete

Kontaktdaten

Objektdaten

  • Objekt-ID
    149991053
  • Objekttypen
    Büro/Praxis, Bürohaus
  • Adresse
    Schulstraße 51
    28844 Weyhe
  • Bürofläche ca.
    140 m²
  • Küche
    Teeküche
  • Heizungsart
    Zentralheizung
  • Wesentlicher Energieträger
    Öl
  • Baujahr
    1984
  • Zustand
    nach Vereinbarung
  • Verfügbar ab
    kurzfristig
  • Kaution
    2 Kaltmieten
  • Kaltmiete
    600,00 EUR
  • Nebenkosten
    180,00 EUR

Ausstattung / Merkmale

  • ✓ Keller
  • ✓ Teeküche

Objekt­beschreibung

Beschreibung

Die Räume befinden sich im Untergeschoss eines zentral gelegenen Geschäftshauses. Der Eingang befindet sich direkt gegenüber der KGS Leeste, sodass Werbung, die an der Tür angebracht werden kann, gut zur Geltung kommt und potentielle Laufkundschaft ansprechen kann.
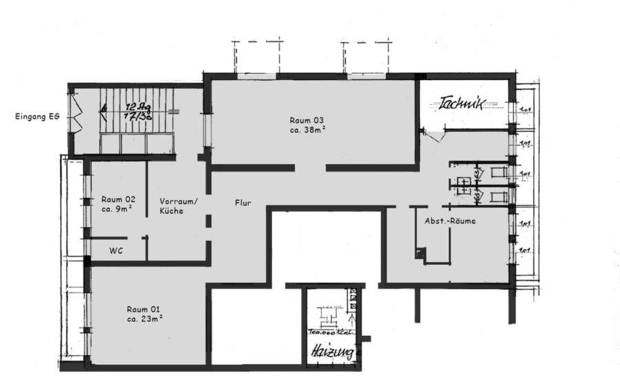
Die Fläche besteht aus zwei großen Räumen, die sich unseres Erachtens optimal als Behandlungs- oder Schulungsräume eignen. Ein Büro lässt sich hingegen optimal in den kleineren Zimmern einrichten. In der Teeküche befindet sich nicht nur die schicke Küche – hier ist auch ausreichend Platz für einen gemütlichen Aufenthalts- oder Pausenraum. Die Einbauküche mit weißen Fronten und allen E-Geräten steht dem neuen Mieter/der neuen Mieterin zur Verfügung.
Hervorzuheben ist nicht zuletzt der praktische Stauraum, den Abstellflächen und -räume schaffen.

Gerne vereinbaren wir einen kurzfristigen Besichtigungstermin damit Sie schauen können, ob sich Ihre Pläne in diesen Räumlichkeiten umsetzen lassen. Bitte senden Sie uns eine Anfrage über das Kontaktformular.

Ausstattung

  • vielfältig nutzbares Raumangebot auf ca. 140 m²
  • robuste Teppich- bzw. PVC-Bodenbeläge
  • moderne Küchenzeile mit E-Geräten kann übernommen werden
  • separate WC's

Sonstiges

Wir bitten um Übermittlung Ihrer vollständigen Kontaktdaten zur Beantwortung Ihrer Anfrage. Wir bitten hierfür um Ihr Verständnis.

Für weitere Fragen stehen wir Ihnen werktags zwischen 08.00 – 17.00 Uhr gern zur Verfügung.

Zur Beachtung:
Die hier gemachten Angaben beruhen auf den uns zur Verfügung gestellten Informationen.
Eine Haftung für die Richtigkeit und Vollständigkeit der Angaben übernehmen wir nicht. Unsere Angebote sind freibleibend und unverbindlich. Irrtum sowie Zwischenverkauf bzw. Zwischenvermietung bleiben vorbehalten. Für vermittelte Geschäfte übernehmen wir keinerlei Haftung.
Unsere Angebote sind nur für den Empfänger selbst bestimmt und dürfen ohne unsere schriftliche Einwilligung nicht an Dritte weitergegeben werden. Zuwiderhandlung verpflichtet zur Schadenersatzleistung mindestens in der Höhe der ortsüblichen Nachweis- bzw. Vermittlungsgebühr. Erfüllungsort und Gerichtsstand ist Bremen.

Lage

Das Objekt liegt in der idyllischen niedersächsischen Gemeinde Weyhe, unmittelbar vor den Toren Bremens. Der Weyher Ortsteil Leeste ist stark nachgefragt, grün und profitiert von der guten Verkehrsanbindung. Das Wohn- und Geschäftsgebäude in der Schulstraße liegt außerdem direkt gegenüber der KGS-Leeste.
Zahlreiche Einkaufsmöglichkeiten, Dienstleister und Versorgungseinrichtungen für den täglichen Bedarf sind in direkter Nachbarschaft ansässig. Das Angebot an Schulen und Kindergärten, sowie der medizinischen Versorgung ist sehr gut.
Haltestellen des ÖPNV sind in 2 Fußminuten erreichbar.

Bus 1 min 

Sie sehen gerade einen Platzhalterinhalt von Google Maps. Um auf den eigentlichen Inhalt zuzugreifen, klicken Sie auf die Schaltfläche unten. Bitte beachten Sie, dass dabei Daten an Drittanbieter weitergegeben werden.

Mehr Informationen

Direktanfrage

* Pflichtangaben
 SSL-verschlüsselt