Schwachhausen . Top Angebot . Gepflegte Doppelhaushälfte mit Garage

28209 Bremen, Doppelhaushälfte zum Kauf

Kontaktdaten

Objektdaten

  • Objekt-ID
    162263153
  • Objekttypen
    Doppelhaushälfte, Haus
  • Adresse
    28209 Bremen
    (Bürgerpark)
  • Etagen im Haus
    3
  • Wohnfläche ca.
    185 m²
  • Grund­stück ca.
    280 m²
  • Zimmer
    6,5
  • Schlafzimmer
    3
  • Badezimmer
    1
  • Wesentlicher Energieträger
    Gas
  • Baujahr
    1935
  • Letzte Modernisierung
    2010
  • Ausstattung
    Standard
  • Stellplätze gesamt
    2
  • Verfügbar ab
    kurzfristig
  • Käufer­provision
    2,5 % zzgl. USt. = 17.701,25€
    2,5 % zzgl. 19 % USt. vom beurkundeten Kaufpreis. Das entspräche bei EUR 595.000 = 17.701,25 €. Mit dem Verkäufer wurde ein Maklervertrag geschlossen. Der Verkäufer zahlt ebenso 2,5 % zzgl. USt. vom beurkundeten Kaufpreis.
  • Kaufpreis
    595.000 EUR

Ausstattung / Merkmale

  • ✓ Keller

Energieausweis

  • Energieausweistyp
    Bedarfs­ausweis
  • Ausstellungsdatum
    nach dem 1.5.2014
  • Baujahr lt. Energieausweis
    1935
  • Primärenergieträger
    Gas
  • Energie­effizienz­klasse
    G

Objekt­beschreibung

Beschreibung

Die Doppelhaushälfte befindet sich in einmalig schöner und gefragter Lage von Bremen-Schwachhausen. Sie wurde 1935 erbaut und 1971 mit einem Anbau erweitert. Die Eigentümer haben das Haus viele Jahre selbst genutzt und gepflegt, nun wird es kurzfristig frei und könnte ihr neues Zuhause werden!

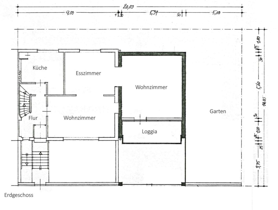
Ein zentraler Flur im Erdgeschoss führt Sie in die Küche und den großen gemütlichen Wohn- und Essbereich. An den Wohn- und Essbereich grenzt ein zweites lichtdurchflutetes Wohnzimmer. Dieses wurde nachträglich angebaut und mit einer Loggia sowie viel Fensterfläche gestaltet. Die vorteilhafte Grundrissgestaltung im Erdgeschoss ermöglicht Ihnen viele variable Nutzungsmöglichkeiten.

Über die Treppe im Eingangsbereich gelangen Sie direkt in den Flur des Obergeschosses. In dem ursprünglichen Bau befinden sich 2 Zimmer, welche Sie ideal als Schlaf- und Kinderzimmer nutzen können. Durch den Anbau wurde ein zusätzliches Zimmer mit praktischen Einbauschränken und einer großzügigen Fensterfront geschaffen. Das Zimmer verfügt zudem über eine weitere Loggia. Abgerundet wird das Raumangebot auf dieser Etage von einem Tageslichtbad mit Dusche und Badewanne.

Der ausgebaute Bodenraum ist in zwei Bereiche unterteilt und lässt Ihnen viel Gestaltungsspielraum.

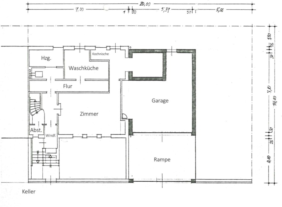
Ein helles Kellerzimmer eignet sich ideal als Hobbyraum oder Gästezimmer. Ergänzend befinden sich im Keller ein Gäste-WC und eine separate Dusche. Ein Vorratsraum bietet praktischen Stauraum. Der Heizraum befindet sich ebenfalls im Keller. Der Keller kann durch den Hausflur sowie durch eine separate Eingangstür betreten werden.

Auf der Gartenfläche neben dem Haus ist ausreichend Platz für einen gemütlichen Sitzbereich im Grünen. Hinter dem Haus befindet sich zudem ein kleines Garten-/Gewächshaus. Die großzügige Doppelgarage bietet Ihnen sichere Stellmöglichkeiten für zwei PKWs oder Fahrräder.

Ausstattung

Wir heben hier nochmals einige Besonderheiten stichwortartig hervor:

  • Hochwertiger Parkettboden und Echtstein Fußböden (Marmor) im Erdgeschoss
  • Gaszentralheizung aus 2010
  • Fenster teilw. 2014 erneuert (2-fach-verglast, Kunststoff)
  • Kanalanschluss zur Straße 2014 erneuert
  • Tageslichtbadezimmer im Obergeschoss
  • Gäste-WC und separate Dusche im Keller
  • Heizraum, Waschküche, Abstellräume im Keller
  • wohnlich ausgebauter Spitzboden (nicht in der Wohnfläche enthalten)
  • Garage

Sonstiges

Wir bitten um Übermittlung Ihrer vollständigen Kontaktdaten zur Beantwortung Ihrer Anfrage. Vielen Dank für Ihr Verständnis!
Für weitere Fragen stehen wir Ihnen werktags zwischen 09.00 – 12.00 Uhr und 14.00 – 16:00 Uhr gern zur Verfügung.

Zur Beachtung:
Die hier gemachten Angaben beruhen auf den uns zur Verfügung gestellten Informationen.
Eine Haftung für die Richtigkeit und Vollständigkeit der Angaben übernehmen wir nicht. Unsere Angebote sind freibleibend und unverbindlich. Irrtum sowie Zwischenverkauf bleiben vorbehalten. Für vermittelte Geschäfte übernehmen wir keinerlei Haftung.
Unsere Angebote sind nur für den Empfänger selbst bestimmt und dürfen ohne unsere schriftliche Einwilligung nicht an Dritte weitergegeben werden. Zuwiderhandlung verpflichtet zur Schadenersatzleistung mindestens in der Höhe der ortsüblichen Nachweis- bzw. Vermittlungsgebühr. Erfüllungsort und Gerichtsstand ist Bremen.

Widerrufsrecht:
Sie haben das Recht, binnen vierzehn Tagen ohne Angabe von Gründen diesen mit Ihrer Anfrage zustandekommenden Vertrag zu widerrufen. Die Widerrufsfrist beträgt vierzehn Tage ab dem Tag des Vertragsabschlusses.
Um Ihr Widerrufsrecht auszuüben, müssen Sie uns mittels einer eindeutigen Erklärung (z.B. ein mit der Post versandter Brief, Telefax oder E-Mail) über Ihren Entschluss, diesen Vertrag zu widerrufen, informieren.
Zur Wahrung der Widerrufsfrist reicht es aus, dass Sie die Mitteilung über die Ausübung des Widerrufsrechts vor Ablauf der Widerrufsfrist absenden.

Da die Provision nur dann anfällt, wenn Sie das Objekt auch tatsächlich kaufen, bleibt Ihre Anfrage auch bei Einwilligung zur sofortigen Maklertätigkeit unverbindlich. Auf Ihre Anfrage erhalten Sie von uns zuerst vollständige Informationen zum Widerruf.

Lage

Diese charmante Doppelhaushälfte befindet sich in einer ruhigen Seitenstraße in Bremen Schwachhausen nahe des Bürgerparks. Sowohl der alltägliche Bedarf als auch zahlreiche Freizeitmöglichkeiten werden in der nahen Umgebung abgedeckt, hervorzuheben ist hier die schöne Wachmannstraße. Der Bremer Bürgerpark ist in wenigen Gehminuten erreicht und bietet Ihnen mitten in der Stadt, auf 200Hektar, zahlreiche Orte zum Entspannen im Grünen.

In nur 650m Entfernung befinden sich eine Grundschule und ein Gymnasium. Weitere Oberschulen sowie Kindertagesstätten sind mit dem Fahrrad oder öffentlichen Verkehrsmitteln in wenigen Minuten erreicht. Die nächste Haltestelle der Straßenbahnlinie 6 ist 250m und der Bremer Hauptbahnhof nur 1,6km entfernt. Von dort aus fahren Zuganbindungen nach Bremen Nord, Bremerhaven, Hamburg und an viele weitere Orte. Die A27 und die B6 sowie die A1 sind mit dem Auto schnell erreicht.

Sie sehen gerade einen Platzhalterinhalt von Google Maps. Um auf den eigentlichen Inhalt zuzugreifen, klicken Sie auf die Schaltfläche unten. Bitte beachten Sie, dass dabei Daten an Drittanbieter weitergegeben werden.

Mehr Informationen

Die dargestellte Position der Immobilie ist nur eine ungefähre Angabe.

Direktanfrage

* Pflichtangaben
 SSL-verschlüsselt