Sicher investieren: Gepflegtes MFH mit Tiefgarage in Toplage von Weyhe

28844 Weyhe, Mehrfamilienhaus zum Kauf

Kontaktdaten

Objektdaten

  • Objekt-ID
    159877542
  • Objekttypen
    Mehrfamilienhaus, Renditeobjekt
  • Adresse
    28844 Weyhe
  • Etagen im Haus
    3
  • Wohnfläche ca.
    503,30 m²
  • Vermietbare Fläche ca.
    503,30 m²
  • Grund­stück ca.
    991 m²
  • Heizungsart
    Etagenheizung
  • Wesentlicher Energieträger
    Gas
  • Baujahr
    1985
  • Ausstattung
    Standard
  • Stellplätze gesamt
    10
  • Käufer­provision
    5,95 % inkl. USt. = 78.718,50
    5 % zzgl. 19 % USt. vom beurkundeten Kaufpreis. Das entspräche bei 1.323.000,00€ = 78.718,50€.
  • Mieteinnahmen (Ist)
    48.060 EUR pro Jahr
  • Kaufpreis
    1.323.000 EUR

Energieausweis

  • Energieausweistyp
    Bedarfs­ausweis
  • Ausstellungsdatum
    nach dem 1.5.2014
  • Baujahr lt. Energieausweis
    1985
  • Primärenergieträger
    Gas
  • Endenergie­bedarf
    114,70 kWh/(m²·a)
  • Energie­effizienz­klasse
    D
0 25 50 75 100 125 150 175 200 225 250+ H G F E D C B A A+ H G F E D C B A A+ Endenergiebedarf 114,70 kWh/(m²·a)

Objekt­beschreibung

Beschreibung

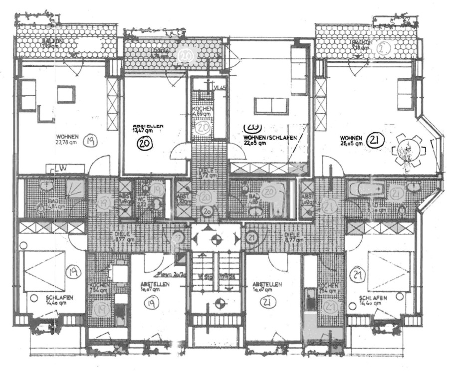
Dieses top gepflegte Mehrfamilienhaus in ruhiger Wohnlage von Weyhe umfasst insgesamt ca. 503 m² Wohnfläche und ist in sieben Wohneinheiten aufgeteilt. Die Wohnungen verteilen sich je dreimal über Erdgeschoss und Obergeschoss und eine im Souterrain. Jede Wohnung verfügt über gut geschnittene Zimmer, eine Küche, ein Badezimmer, einen praktischen Abstellraum sowie einen Balkon, bzw. eine Terrasse im Souterrain, der zusätzlichen Wohnkomfort bietet.

Alle Mietverhältnisse bestehen langfristig, das längste bereits seit 1993. Die letzten Mieterhöhungen wurden zum 01.10.2023 bei sämtlichen Einheiten durchgeführt. Die aktuelle Jahresnettokaltmiete beträgt 48.060,00€ und unterstreicht in Kombination mit der soliden Mieterstruktur die Attraktivität der Immobilie als Kapitalanalge.
Zum 01.03.26 sind die beiden Wohnungen EG links und rechts frei geworden. Ihre Chance die Rendite zu steigern.

Die Immobilie befindet sich in einem insgesamt gepflegten Zustand. Die solide Bauweise und die gut strukturierten Grundrisse bieten ein hohes Maß an Wohnqualität – ein wesentlicher Faktor für die nachhaltige Vermietbarkeit in dieser begehrten Wohnlage.

Ausstattung

Wir heben einige Besonderhieten stichwortartig hervor:

  • Das Objekt ist bereits in Wohnungseigentum (WEG) aufgeteilt
  • 1 Wohnung im Souterrain, jeweils 3 Wohnungen im EG und OG in einem Top-Zustand
  • 6 von 7 Wohnungen eigentümerseitig mit einer Einbauküche ausgestattet
  • 7 Gasetagenheizungen, Baujahr 2001
  • 4 Tiefgaragenstellplätze

Sonstiges

Wir bitten um Übermittlung Ihrer vollständigen Kontaktdaten zur Beantwortung Ihrer Anfrage. Wir bitten hierfür um Ihr Verständnis!

Für weitere Fragen stehen wir Ihnen montags bis donnerstags von 9–12 und 14–16 Uhr und freitags von 9–12 Uhr gerne zur Verfügung.

Zur Beachtung:
Die hier gemachten Angaben beruhen auf den uns zur Verfügung gestellten Informationen.
Eine Haftung für die Richtigkeit und Vollständigkeit der Angaben übernehmen wir nicht. Unsere Angebote sind freibleibend und unverbindlich. Irrtum sowie Zwischenverkauf bleiben vorbehalten. Für vermittelte Geschäfte übernehmen wir keinerlei Haftung.
Unsere Angebote sind nur für den Empfänger selbst bestimmt und dürfen ohne unsere schriftliche Einwilligung nicht an Dritte weitergegeben werden. Zuwiderhandlung verpflichtet zur Schadenersatzleistung mindestens in der Höhe der ortsüblichen Nachweis- bzw. Vermittlungsgebühr. Erfüllungsort und Gerichtsstand ist Bremen.

Widerrufsrecht:
Sie haben das Recht, binnen vierzehn Tagen ohne Angabe von Gründen diesen mit Ihrer Anfrage zustandekommenden Vertrag zu widerrufen. Die Widerrufsfrist beträgt vierzehn Tage ab dem Tag des Vertragsabschlusses.
Um Ihr Widerrufsrecht auszuüben, müssen Sie uns mittels einer eindeutigen Erklärung (z.B. ein mit der Post versandter Brief, Telefax oder E-Mail) über Ihren Entschluss, diesen Vertrag zu widerrufen, informieren.
Zur Wahrung der Widerrufsfrist reicht es aus, dass Sie die Mitteilung über die Ausübung des Widerrufsrechts vor Ablauf der Widerrufsfrist absenden.

Da die Provision nur dann anfällt, wenn Sie das Objekt auch tatsächlich kaufen, bleibt Ihre Anfrage auch bei Einwilligung zur sofortigen Maklertätigkeit unverbindlich.

Lage

Das Mehrfamilienhaus befindet sich in zentraler Lage in Weyhe, einer beliebten Gemeinde südlich von Bremen. Die Immobilie liegt in Schlagdistanz zum Rathaus, dem Kirchweyher Bahnhof sowie zum Weyher Marktplatz, dem lebendigen Zentrum des Ortes, das durch eine ausgezeichnete Infrastruktur und ein vielfältiges Angebot an Dienstleistungen, Einkaufsmöglichkeiten und Gastronomie besticht.
Das Objekt liegt in einer ruhigen Spielstraße. Von den Balkonen und Terrassen auf der Rückseite geniesst man einen unverbauten Blick ins Grüne.
Die fußläufige Erreichbarkeit von Ärzten, Apotheken, Schulen und Kindertagesstätten macht die Lage besonders attraktiv für Familien, Senioren und Berufstätige gleichermaßen. Der nahegelegene Bahnhof bietet eine sehr gute Anbindung an den öffentlichen Nahverkehr – von hier aus gelangen Pendlerinnen und Pendler in nur wenigen Minuten nach Bremen und in andere Städte der Region. Auch mit dem Auto ist die Lage ideal: Die Autobahn A1 sowie die Bundesstraßen sind schnell zu erreichen.

Trotz der zentralen Lage bietet das direkte Umfeld auch ruhige Rückzugsorte und Grünflächen, die zur Erholung im Alltag einladen. Die Kombination aus städtischem Komfort und angenehmer Wohnatmosphäre macht diesen Standort besonders begehrt.

Flughafen 20 min | Fernbahnhof 6 min 

Sie sehen gerade einen Platzhalterinhalt von Google Maps. Um auf den eigentlichen Inhalt zuzugreifen, klicken Sie auf die Schaltfläche unten. Bitte beachten Sie, dass dabei Daten an Drittanbieter weitergegeben werden.

Mehr Informationen

Die dargestellte Position der Immobilie ist nur eine ungefähre Angabe.

Direktanfrage

* Pflichtangaben
 SSL-verschlüsselt